12LET
Odhadnout cenu

Podnikatelský objekt po rekonstrukci 1 300 m Luby u Chebu

Výrobní prostory

Zastavěná plocha 1 467 m2 Luby, Luby I

Hledáte prostor, kde můžete okamžitě spustit výrobu, nebo investici s ročním výnosem okolo 9 %? Tato zrekonstruovaná hala v Lubech u Chebu nabízí hotové technologie i strategickou polohu blízko německých hranic.

Dispozice a široké možnosti využití:
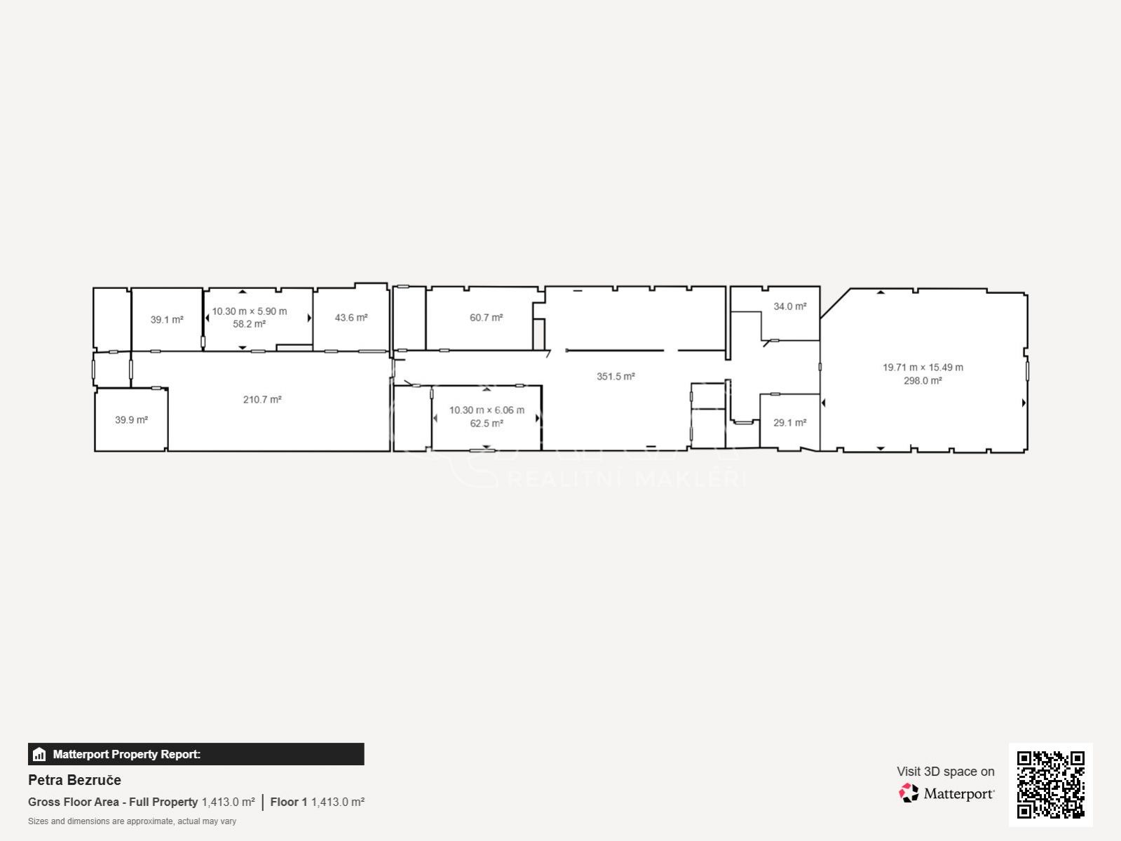
Budova poskytuje celkovou užitnou plochu 1 700 m. V prvním nadzemním podlaží získáte 1 300 m volného prostoru (včetně rekonstruovaného prostoru kanceláří s kuchyňským koutem), zatímco v suterénu se nachází 400 m včetně opraveného sociálního zázemí (oddělené šatny se sprchou a WC pro muže a ženy). Prostor je ideální nejen pro lehkou výrobu, montáž a klasické skladování, ale díky své poloze a velikosti skvěle poslouží i jako logistické centrum, e-commerce fulfillment, servis strojů a zařízení nebo prodejní showroom.

Technické parametry a úspory:
Nemusíte řešit nákladné rekonstrukce, klíčové technologie jsou již hotové. K dispozici je nová elektroinstalace s dostatečnou kapacitou (nová rozvodna příkon 3 × 160 A, sazba C02D), nové rozvody vody i kanalizace napojené na čističku v areálu. O vytápění se stará nový kotel na tuhá paliva s možností využití vlastních briket, přičemž systém je stavebně připraven i na případné napojení tepelného čerpadla. Stropy s výškou 3,8 m jsou zateplené foukanou izolací (2530 cm) pro lepší tepelný komfort, přičemž zbývá dokončit jen zhruba třetinu haly. Objekt má nová plastová okna a fasáda je připravena na zateplení (ideální pro čerpání dotací v kombinaci s fotovoltaikou).

Zobrazit celý text

Přístup a logistika:
Hala disponuje novými elektrickými vjezdovými vraty (2,94 × 3,3 m) a dalšími dvěma vraty na koncích budovy s možností využití nákladové rampy. Pohodlný příjezd je zajištěn přímo z místní komunikace s bezproblémovým parkováním v areálu a možností dalšího rozšíření zpevněných ploch podél budovy.

Strategická lokalita:
Bývalý areál STRUNA leží pouhých 25 km od Chebu s rychlým napojením na dálnici D6 směr Praha a 18 km od mezinárodního tahu E49. Je to ideální odrazový můstek pro byznys s dosahem do celého Německa.

Pro investory:
Při aktuální kupní ceně 6 790 000 Kč a lokálním tržním nájemném generuje nemovitost atraktivní potenciální roční výnos z pronájmu okolo 9 %.

Areál v Lubech má strategickou polohu nedaleko německých hranic, což z něj činí ideální místo pro výrobu, skladování či logistiku s mezinárodním dosahem.
V případě zájmu nás neváhejte kontaktovat, rádi vám areál ukážeme.

360°

Virtuální prohlídka

6 790 000

s provizí RK

cena včetně provize a právních služeb

ID zakázky 10068894
Typ nemovitosti Výrobní prostory
Zastavěná plocha 1 467 m2
Plocha kanceláří 1 300 m2
Podlahová plocha 1 700 m2
Počet nadzemních podlaží 2
Patro 1
Lokalita Luby, Luby I
Umístění Okraj obce
Doprava Silnice, Autobus
Konstrukce budovy Cihlová
PENB G

Nejnovější nemovitosti v mé nabídce

Rodinný dům se zahradou 2 068 m² v Kařezu. Prostor, který vám byt nikdy nenabídne

  • Aktivní
  • Jen u nás
Dispozice Rodinný dům
Lokalita Kařez
Cena 4 990 000

Ing. Ondřej Soukup

4 nemovitosti v nabídce

+420 602 427 211

Skladovací hala s kancelářským zázemím 1 300 m Luby u Chebu

Dispozice Skladovací prostory
Lokalita Luby, Luby I
Cena 6 790 000

Ing. Ondřej Soukup

4 nemovitosti v nabídce

+420 602 427 211

K pronájmu: Výrobní a skladovací hala 1 700 m v Lubech u Chebu připraveno k okamžitému využití

Dispozice Skladovací prostory
Lokalita Luby, Luby I
Cena 59 000 Kč/měs

Ing. Ondřej Soukup

4 nemovitosti v nabídce

+420 602 427 211

Zobrazit všechny nemovitosti

Napište si o další informace