12LET
Odhadnout cenu

Stradonický mlýn

Tato nabídka již není aktivní

Zemědělský objekt

Celková plocha 9915 m2 Stradonice

V exkluzivním zastoupení si vám dovolujeme nabídnout pohádkový mlýn ze 17. století ve Stradonicích u Slaného. Do Prahy cesta trvá cca 40 minut. Můžete zvolit trasu po D7 i po D8. Objekt není památkově chráněný.

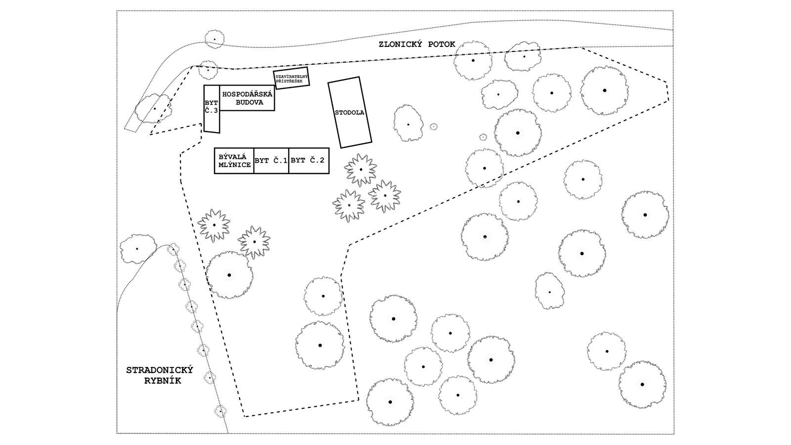
Mlýn sousedí se Stradonickým rybníkem (cca 6000 m2) a podél pozemku protéká Zlonický potok. Hastrman hlídá venku a čerti tu mariáš již nehrají.

Areál mlýna se skládá několik budov, které společně tvoří uzavřený dvůr. Ve dvou budovách jsou tři bytové jednotky (v současnosti slouží jako nájemní byty) a čtvrtá ve výstavbě v bývalé mlýnici. Dále je zde stodola, hospodářská budova a uzavíratelný přístřešek.

Zobrazit celý text

Celková plocha pozemku činí téměř 10 000 m2. Nabízí tedy nespočet nápadů k využití - penzion, chov koní, trvalé bydlení, bio farmu i komerční využití.

Bývalé hospodářské budovy, včetně stodoly, lze bez dalších úprav použít jako rozlehlé skladovací objekty či je zvelebit např. na pořádání oslav a svateb.

Jedná se tedy o ideální místo, abyste si splnili vaše osobní sny či podnikatelské záměry.

Hlavní přednosti:
- blízká dojezdová vzdálenost do Prahy, Kladna, Slaného, Kralup nad Vltavou
- celková plocha pozemku téměř 10 000 m2
- Genius loci místa
- naprosté soukromí
- kouzelné místo pro život
- veliký potenciál pro podnikání
- možnost zachování současného nájemného bydlení

K mlýnu na okraji obce se sjíždí z hlavní silnice, následně po obecní cestě přes kamenný most. V mlýně na vás tedy čeká nerušené soukromí. U domu jsou parkovací stání.

Na pozemku je studna. V současné době je dokončována obecní vodovodní řád a napojení na veřejnou kanalizaci. Objekt je připojen na 3 fázový elektrický rozvod. Vytápění zajišťují kotle na pevná paliva, k dispozici také elektrokotel.

Obec Stradonice se rozkládá v severní části okresu Kladno, mezi obcemi Klobuky a Zlonice. Díky své poloze ve středočeském kraji nabízí zázemí pro trvalý rodinný život či podnikání nedaleko Prahy.

Objekt ze 17. století patří k jednomu z nejstarších původních mlýnů v kraji. O historii se dočtete na stránkách obce Stradonice a rádi Vám odkaz na pojednání pana Václava Vernera společně s dalšími informacemi o mlýně pošleme elektronicky.

Zaujalo vás toto kouzelné místo a chcete více informací? Neváhejte, pište nebo volejte. Budeme se těšit.

Typ nemovitosti Zemědělský objekt
Celková plocha 9915 m2
Užitná plocha 880 m2
Počet nadzemních podlaží 1
Lokalita Stradonice
Umístění Okraj obce
Topêní Lokální palivové, ÚT elektrické
Inženýrské sítě Studna
Konstrukce budovy Smíšená

Nejnovější nemovitosti v mé nabídce

Prodej stavebního pozemku s rekreačním domem Krámy, Nové Dvory (u Slapské přehrady)

Dispozice Pozemek, bydlení
Lokalita Nové Dvory, Krámy
Cena 6 900 000

Lenka Fiedlerová

4 nemovitosti v nabídce

+420 774 303 580

Prodej rekreačního domu s pozemkem 3271 m2 Krámy, Nové Dvory (u Slapské přehrady)

Dispozice Chata
Lokalita Nové Dvory, Krámy
Cena 6 900 000

Lenka Fiedlerová

4 nemovitosti v nabídce

+420 774 303 580

Pronájem kanceláře

Dispozice Kancelář
Lokalita Hostivice, nám. 1. máje
Cena 6 800 Kč/měs

Lenka Fiedlerová

4 nemovitosti v nabídce

+420 774 303 580

Zobrazit všechny nemovitosti

Napište si o další informace