12LET
Odhadnout cenu

Rodinný dům po rekonstrukci, až 3 bytové jednotky, garáž

RD Horni Mostenice

Rodinný dům

Zastavěná plocha 148 m2 Horní Moštěnice, Havlíčkova

NOVÁ CENA! Dům, který je reálně dělitelný až na 3 samostatné bytové jednotky.

Hledáte prostorný, technicky kvalitní dům, který nabízí okamžité bydlení, možnost pronájmu i podnikání, a to vše s nízkými provozními náklady?
Pak je tento dům v obci Horní Moštěnice přesně pro vás.

Základní informace
• vícegenerační rodinný dům
• užitná plocha cca 350 m²
• pozemek cca 781 m²
• slepá ulice – klid, soukromí, minimum provozu
• energetická náročnost B – velmi úsporná
• dům po rozsáhlé rekonstrukci

Zobrazit celý text

Dispozice – hlavní konkurenční výhoda
Dům je reálně dělitelný až na 3 samostatné bytové jednotky, případně ideální pro kombinaci bydlení + podnikání.
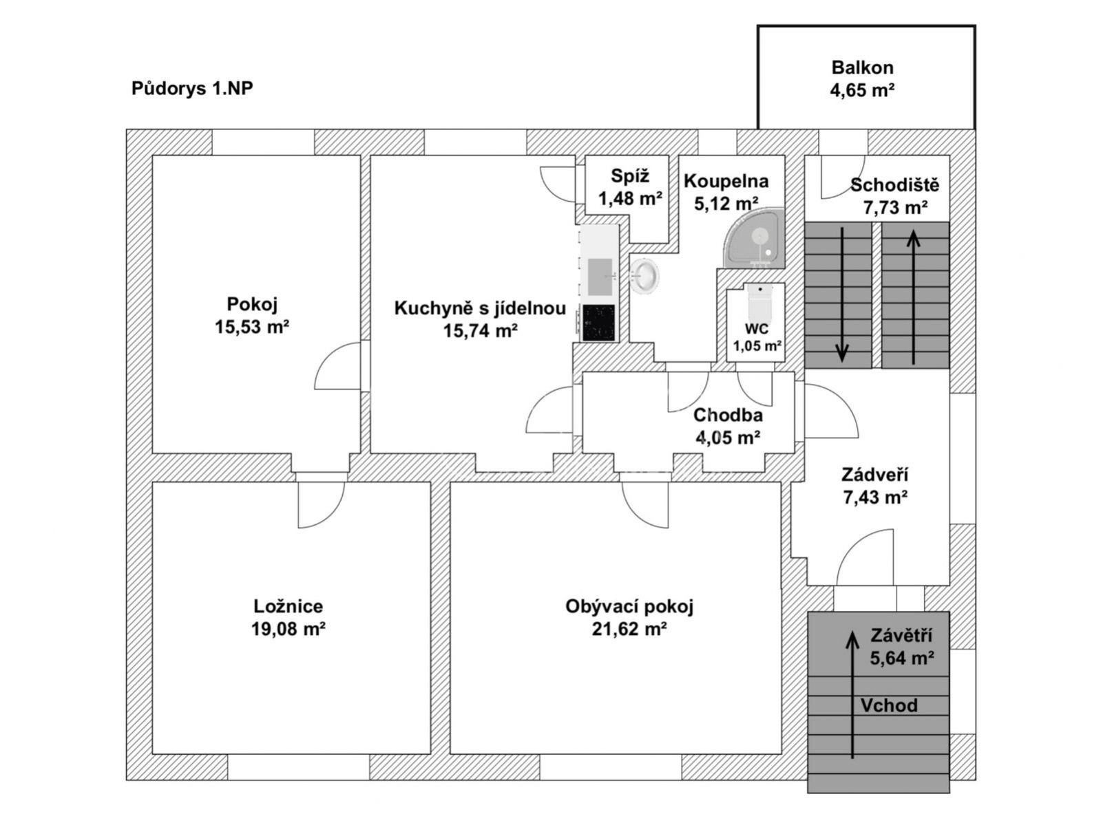
Přízemí – byt 3+1
• kuchyně se špajzem
• tři obytné pokoje
• koupelna se sprchovým koutem
• samostatné WC

1. patro – byt 3+kk
• prostorná kuchyně s jídelnou
• obývací pokoj s krbem
• šatna
• koupelna se sprchovým koutem
• samostatné WC

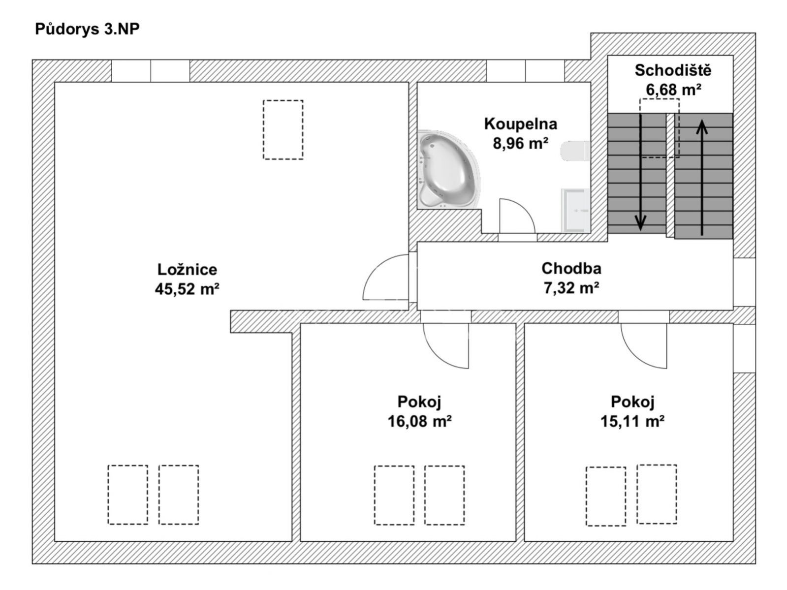
Podkroví – samostatná bytová jednotka / mezonet
• dva samostatné pokoje
• plus velký pokoj s přípravou na kuchyňský kout
• koupelna s vanou, wc

Ideální řešení pro:
• vícegenerační bydlení
• samostatný pronájem bytů
• kanceláře, služby
• sídlo firmy s bydlením

Technický stav a vybavení
• kompletní rekonstrukce rozvodů (elektřina, voda, odpady)
• tepelné čerpadlo (2023)
• fotovoltaika (2023)
• zateplená fasáda (12–15 cm)
• masivní zdivo cca 50 cm
• zateplené sklepy i štíty
• pálená střešní krytina Tondach
• plastová okna s dvojskly
• internet + datové rozvody v každé místnosti
Výsledkem jsou velmi nízké provozní náklady, a to i vzhledem k velikosti domu.

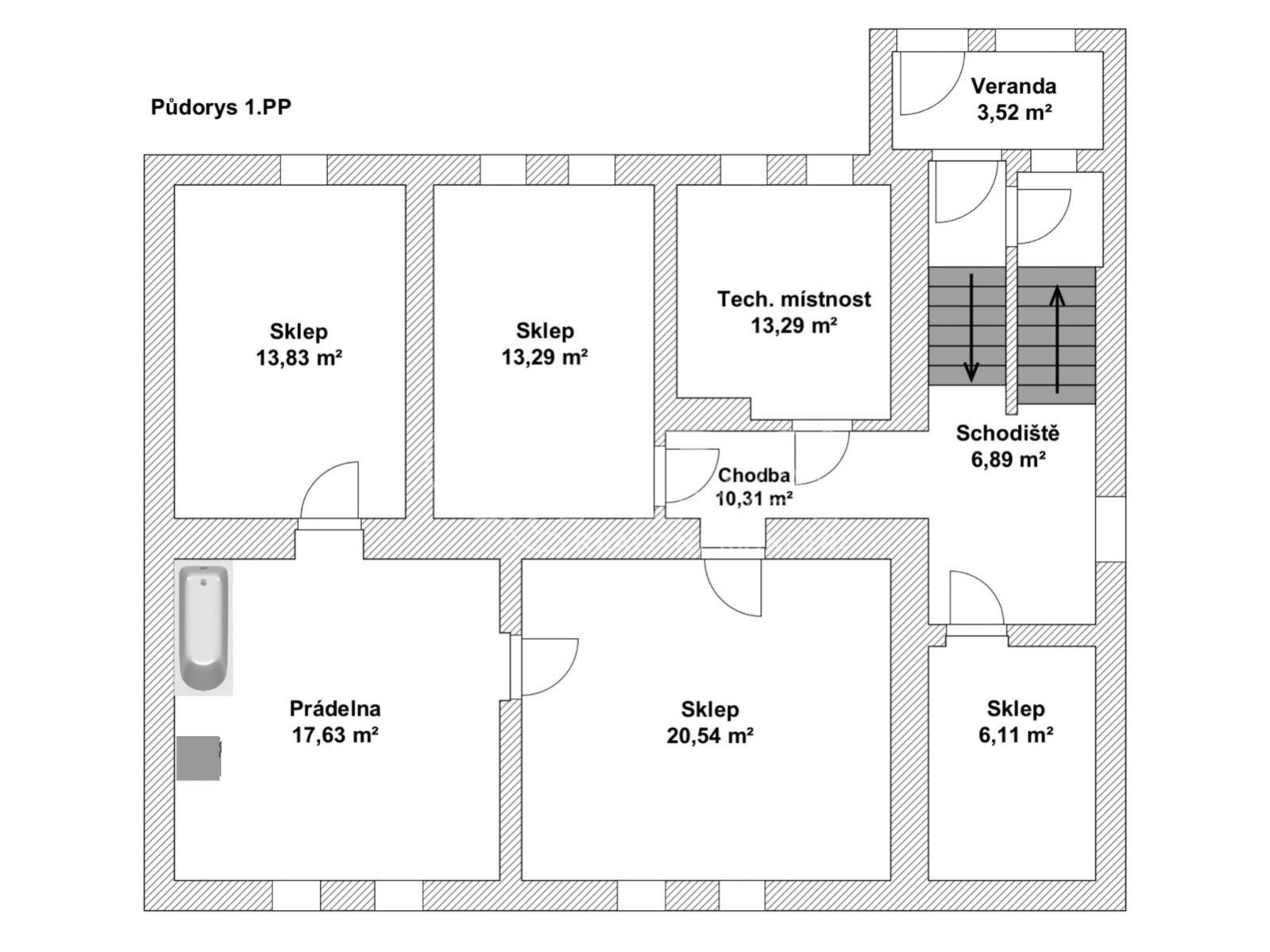
Sklep a hospodářské zázemí
• sklepní prostory cca 100 m²
• technická místnost
• prádelna
• sklad
• výborné zázemí pro provoz domu i podnikání
Díky velkorysé ploše se zde navíc přímo nabízí možnost vybudování domácí posilovny nebo wellness zóny.

Exteriér a pozemek
• uzavřený dvůr – maximální soukromí
• garáž
• sklad a hospodářská místnost
• zahrada 258m2
• bezproblémové parkování přímo na pozemku

Lokalita
• plná občanská vybavenost v obci
• školka, škola, lékař, obchody
• vlak, autobus i MHD v docházkové vzdálenosti
• Přerov pár minut jízdy, dobrá dostupnost z Olomouce – a s novou dálnicí ještě lepší

Potenciál
• k rodinnému bydlení
• možnost samostatného pronájmu jednotlivých bytů
• vhodné pro investory, podnikatele i kombinaci bydlení + příjem
• energetická třída B = dlouhodobě udržitelný provoz

Velký, energeticky úsporný vícegenerační dům po rekonstrukci, který nabízí okamžité bydlení, silný investiční potenciál a flexibilní využití v klidné lokalitě.
V případě zájmu o více informací, příp. o prohlídku mne prosím kontaktujte. Cena na požádání.

cena na dotaz

cena u makléře

ID zakázky 18734
Zastavěná plocha 148 m2
Plocha parcely 781 m2
Užitná plocha 350 m2
Podlahová plocha 450 m2
Počet nadzemních podlaží 3
Lokalita Horní Moštěnice, Havlíčkova
Doprava vlak, dálnice, silnice, autobus
Konstrukce budovy cihlová
PENB B

Nejnovější nemovitosti v mé nabídce

Prodej bytu 2+1 s balkonem, 54 m², ulice Karafiátova – žádaná lokalita Tabulový Vrch, Olomouc

  • Aktivní
  • Jen u nás
Dispozice 2 + 1
Lokalita Olomouc, Neředín, Karafiátová
Cena 4 399 000

Eva Andrášiová

4 nemovitosti v nabídce

+420 734 522 841

Prodej stavebního pozemku s projektem a stavebním povolením – Grygov, ulice Za Humny

  • Aktivní
  • Jen u nás
Celková plocha 868 m2
Lokalita Grygov
Cena cena na dotaz

Eva Andrášiová

4 nemovitosti v nabídce

+420 734 522 841

Dům 4+kk s garáží, pozemkem 868m2, Grygov

  • Aktivní
  • Jen u nás
Užitná plocha 235 m2
Lokalita Grygov
Cena cena na dotaz

Eva Andrášiová

4 nemovitosti v nabídce

+420 734 522 841

Zobrazit všechny nemovitosti

Napište si o další informace