12LET
Odhadnout cenu

Byt 3+kk, 62m2, výhled na Prahu, 8.NP – poslední patro, Praha 10 – Strašnice, Srbínská

Byt 3+kk

Podlahová plocha 62 m2 Praha, Strašnice, Srbínská

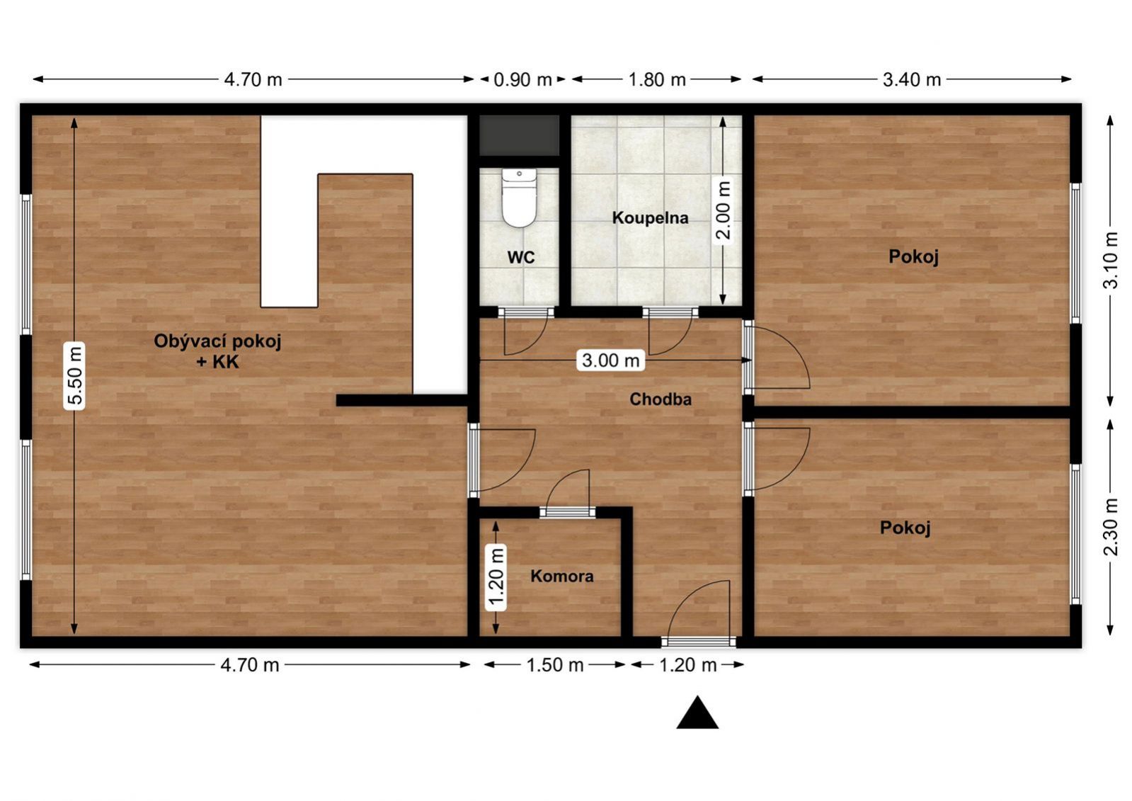
Dispozice 3+kk, sklep, výtah, bezbariérový přístup, 8.NP - poslední patro, výhled na Prahu
Byt s dispozicí 3+kk, komora s podlahovou plochou 62 m2. Byt disponuje obývacím pokojem spojeným s kuchyňským koutem a jídelnou s výhledem na Prahu, dále ložnicí, dětským pokojem, koupelnou s vanou a odděleným WC. Ve vstupní hale je vybudována komora. Byt je umístěn v 8.NP v posledním patře v rámci cihlové nástavby z roku 1999 včetně zateplení a velkoformátových oken a je k dispozici ihned.

Bytový dům v ulici Srbínská má dostatek parkovacích míst před domem. V lokalitě Gutovka se zázemím Základní školy za rohem a 5 min pěšky na metro A Strašnická, je tento byt vhodný jak pro vlastní bydlení, tak jako výborná investiční příležitost.

V okolí je vyhledávané centrum Gutovka se skateparkem, umělou lezeckou stěnou, lanovým centrem, ledovou plochou pro zimní sporty, hokej a bruslení. Dětské hřiště, Základní škola Gutovka a Gymnázium Voděradská. V docházkové vzdálenosti jsou tenisové haly či sportovní areál FK Union Strašnice, dále sportovní areál Slavia, kde kromě velkého fotbalového stadionu naleznete také plavecký bazén, koupaliště, zimní stadion, sportovní halu, atletický stadion a další sportovní vyžití.

Zobrazit celý text

Strašnice s metrem trasy A - Strašnická - spojují dopravní dostupnost do centra Prahy i za její hranice s plnou občanskou vybaveností a mimořádnými možnostmi vyžití pro rodiny s dětmi. V pěší vzdálenosti je vybudována vlaková stanice Praha Zahradní město, a jižní spojkou se dostanete pohodlně za Prahu. Ve výstavbě je budován projekt drážní promenáda, která efektivně propojí Strašnice se Zahradním městem a Vršovicemi.

Kompletní občanská vybavenost: V okolí bytového domu se nachází mateřské, základní a střední školy včetně gymnázia a Metropolitní univerzity. Nechybí ani poliklinika, ordinace lékařů, plavecký bazén s koupalištěm, sportovní haly, obchodní centrum Eden. Strašnice tak jsou ideálním bydlení pro rodiny s dětmi i aktivní sportovce. Všichni zde naleznou mnoho možností, jak trávit volný čas.

Vynikající dopravní dostupnost tramvají tramvají do Vršovic nebo do centra, v docházkové vzdálenosti se nachází metro A Strašnická, 10 minut chůze na metro A - Skalka, nebo autem na Jižní spojku.

7 650 000

s provizí RK
ID zakázky 10088643
Dispozice 3+kk
Podlahová plocha 62 m2
Počet nadzemních podlaží 8
Podlaží 8. podlaží
Vlastnictví Osobní
Lokalita Praha, Strašnice, Srbínská
Umístění Klidná část obce
Doprava Vlak, MHD, Autobus
Konstrukce budovy Cihlová
PENB C

Nejnovější nemovitosti v mé nabídce

Stavební pozemek 1714m2, klidná část obce Zdiby

Dispozice Pozemek, bydlení
Lokalita Zdiby
Cena 17 140 000

Michaela Průchová

27 nemovitostí v nabídce

+420 731 402 811

Byt 2+kk, 56m2, sklep, 1.NP, po rekonstrukci

Dispozice 2+kk
Lokalita Brandýs nad Labem-Stará Boleslav, Stará Boleslav, Na kloboučku
Cena 5 650 000

Michaela Průchová

27 nemovitostí v nabídce

+420 731 402 811

Zobrazit všechny nemovitosti

Napište si o další informace