12LET
Odhadnout cenu

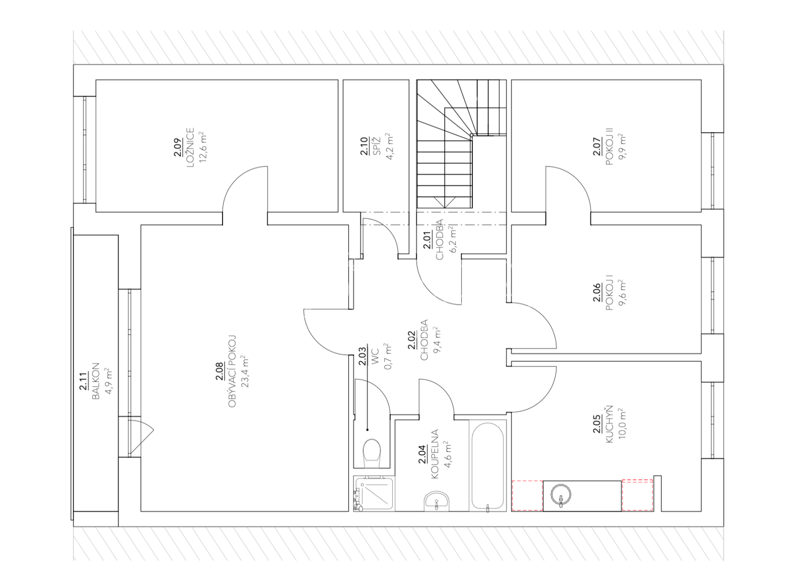
Prodej bytu 4+1 se zahradou v řadovém domě – Žamberk

Tato nabídka již není aktivní

Byty – 4 + 1

Zastavěná plocha 119 m2 Žamberk, U Daliborky

Dobrý den,
pokud hledáte prostorné bydlení, které si můžete přetvořit přesně podle svých představ, toto může být nabídka pro vás.

V klidné části Žamberka, v ulici U Daliborky, nabízím k prodeji bytovou jednotku 4+1 o ploše 84 m² s balkonem, garáží, sklepem i zahrádkou – zkrátka vše, co ke komfortnímu bydlení patří.

Byt se nachází ve 2. patře cihlového řadového domu, který je rozdělen na dvě samostatné bytové jednotky.
Byt je před celkovou rekonstrukcí, lze si interiér uzpůsobit přesně vašim potřebám, ať už preferujete otevřený obývací prostor s kuchyní nebo jinou změnu dispozice. Na obývací pokoj navazuje prostorný balkon (5 m²), který je orientován na východ a do příjemného prostředí ulice Řadová.
Celková plocha pozemku je 324 m2, na kterém můžete užívat společnou zahrádku nebo ji přizpůsobit k venkovnímu posezení.

Zobrazit celý text

Dům je napojený na elektřinu, vodovod i kanalizaci.
Kromě dvou sklepních prostor je k dispozici také kotelna s kotlem na tuhá paliva a garáž (16 m²), díky které nebudete mít o parkování nouzi.
Společné části domu (schodiště, chodby a vstupní hala) jsou ve spoluvlastnictví se sousedním majitelem druhé bytové jednotky.

Lokalita nabízí klidné bydlení s dobrou dostupností do centra města i kompletní občanskou vybaveností v dosahu.
Pokud hledáte byt s potenciálem a zázemím, kde můžete vytvořit skutečný domov, přijďte se podívat osobně.
Budu se těšit.

ID zakázky 18342
Dispozice 4 + 1
Zastavěná plocha 119 m2
Užitná plocha 84 m2
Podlahová plocha 121 m2
Počet nadzemních podlaží 2
Patro 1
Vlastníctví osobní
Lokalita Žamberk, U Daliborky
Umístění klidná část obce
Doprava vlak, silnice, autobus
Konstrukce budovy cihlová
PENB G

Nejnovější nemovitosti v mé nabídce

Prodej rodinného domu v Jaroměři – Palackého ulice

Užitná plocha 91 m2
Lokalita Jaroměř, Jakubské Předměstí, Palackého
Cena 3 090 000

Bc. Dominik Pařízek

9 nemovitostí v nabídce

+420 732 757 022

Pronájem bytu 3+1 70 m², Náchod

Dispozice 3 + 1
Lokalita Náchod, Příkopy
Cena 15 000 Kč/měsíc

Bc. Dominik Pařízek

9 nemovitostí v nabídce

+420 732 757 022

Prodej stavebního pozemku 873 m², Náchod

Celková plocha 873 m2
Lokalita Náchod, Bražec, V Kalhotách
Cena 2 837 250

Bc. Dominik Pařízek

9 nemovitostí v nabídce

+420 732 757 022

Zobrazit všechny nemovitosti

Napište si o další informace