12LET
Odhadnout cenu

K pronájmu: Výrobní a skladovací hala 1 700 m v Lubech u Chebu připraveno k okamžitému využití

Skladovací prostory

Zastavěná plocha 1 467 m2 Luby, Luby I

59 000 Kč/měs

zajímá mě

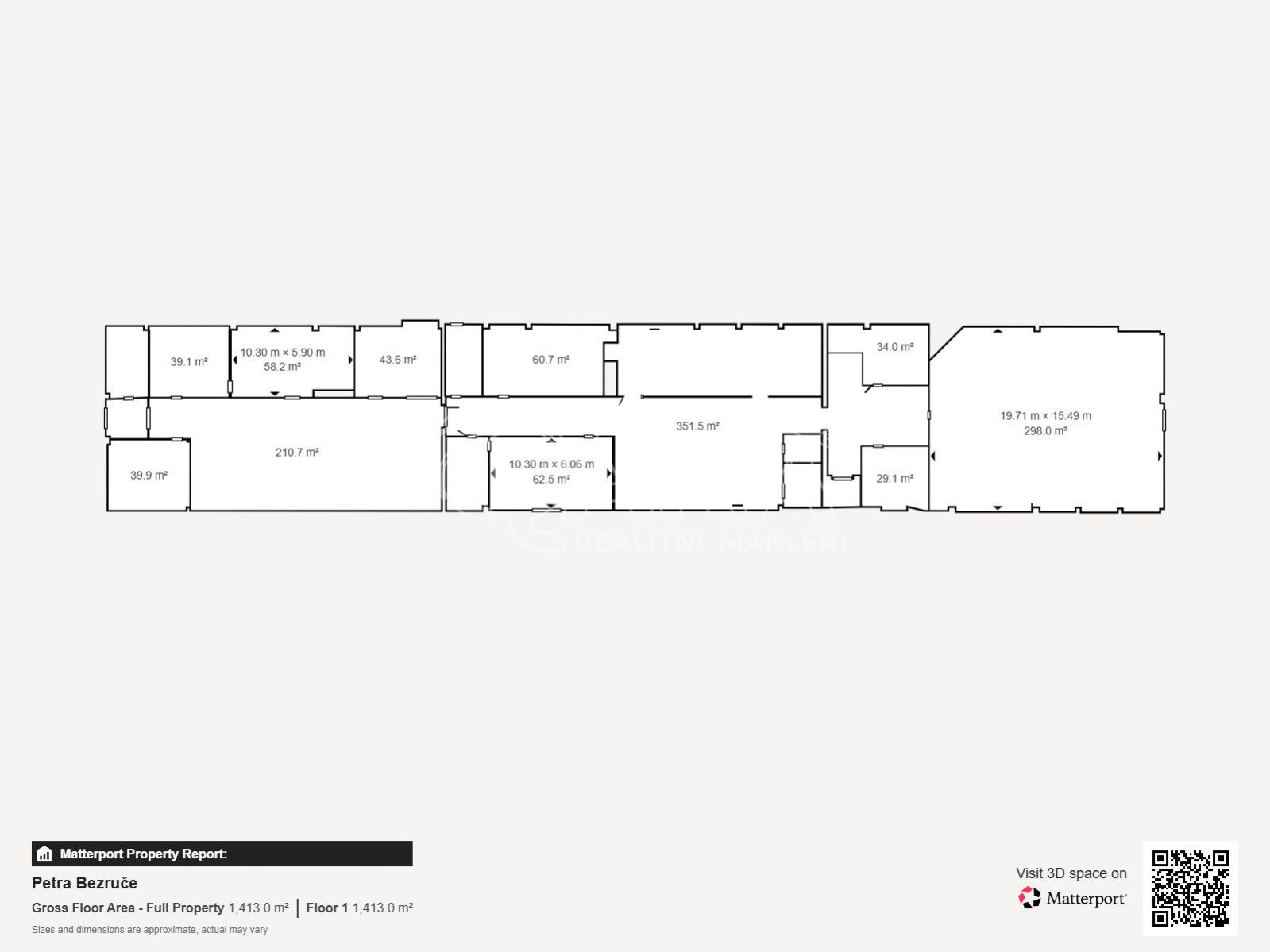
Hledáte velký prostor pro své podnikání v lokalitě s výbornou dopravní dostupností a bez potřeby dalších investic? V areálu v Lubech u Chebu nabízíme k pronájmu prostornou halu o ploše 1 700 m, která je připravena k okamžitému provozu (z toho 1.NP s plochou cca 1400 m a suterén cca 300 m).

Budova prošla rozsáhlými technickými úpravami a je ideálním řešením pro lehkou výrobu, sklad, logistiku nebo jako základna pro další podnikatelské aktivity.

Co objekt nabízí:
- Kompletně modernizovaná elektroinstalace a rozvody
- Zrekonstruované vytápění (nový kotel na tuhá paliva, připraveno i na tepelné čerpadlo)
- Nová plastová okna s izolačními skly
- Zateplené stropy
- Opravené zázemí pro zaměstnance šatny, toalety

Zobrazit celý text

Připojení a energie:
- Elektřina: nový přívod, rozvodna s příkonem 3×160 A (sazba C02D)
- Voda a kanalizace: nové přípojky, napojení na areálovou čističku
- Plyn: možnost opětovného připojení

Přístup a doprava:
- Přímý vjezd z obecní komunikace
- Elektrická vrata (2,94 × 3,3 m) + dvě další vrata na opačných stranách haly
- Možnost využití nákladové rampy
- Parkovací plocha u objektu (další rozšíření možné)

Lokalita s výhodami:
- Luby u Chebu strategická poloha blízko hranic s Německem. Výborná dostupnost:
- 25 km do Chebu (napojení na D6 směr Praha)
- 18 km k silnici E49 (Magdeburg Vídeň)

Nájemní podmínky:
- Měsíční nájemné: 59 000 Kč
- Vratná kauce: 118 000 Kč
- Zálohy na energie a služby (elektřina, voda): dle spotřeby bude upřesněno (převod smlouvy na nájemce)

Prostor je k dispozici ihned. V případě zájmu o více informací nebo osobní prohlídku nás neváhejte kontaktovat.

360°

Virtuální prohlídka

59 000 Kč/měs

s provizí RK

cena včetně provize a právních služeb

ID zakázky 10023666
Typ nemovitosti Skladovací prostory
Zastavěná plocha 1 467 m2
Plocha kanceláří 1 700 m2
Počet nadzemních podlaží 2
Patro 1
Lokalita Luby, Luby I
Umístění Okraj obce
Doprava Silnice, Autobus
Konstrukce budovy Cihlová
PENB G

Nejnovější nemovitosti v mé nabídce

Pronájem útulného rodinného domu 2+kk se zahradou a garáží v Komárově u Hořovic

  • Aktivní
  • Jen u nás
Dispozice Rodinný dům
Lokalita Komárov, Sadová
Cena 16 000 Kč/měs

Ing. Ondřej Soukup

5 nemovitostí v nabídce

+420 602 427 211

Skladovací hala s kancelářským zázemím 1 300 m Luby u Chebu

Dispozice Skladovací prostory
Lokalita Luby, Luby I
Cena 6 790 000

Ing. Ondřej Soukup

5 nemovitostí v nabídce

+420 602 427 211

Podnikatelský objekt po rekonstrukci 1 300 m Luby u Chebu

Dispozice Výrobní prostory
Lokalita Luby, Luby I
Cena 6 790 000

Ing. Ondřej Soukup

5 nemovitostí v nabídce

+420 602 427 211

Zobrazit všechny nemovitosti

Napište si o další informace